| Höhe | 570 m |
Attersee-Chalet Angermann
Quelle: Salzkammergut
Die Unterkunft
Genießen Sie diesen Ausblick – der Angermann macht es möglich!
Naturparks Attersee-Traunsee mit Wiesen, Wäldern, Bergen und Seen.
Tauchen Sie ein in die Streuobstwiese mit alten Zwetschkenbäumen vor dem Haus - ein
Blütenmeer im Frühling, vollreife Zwetschken für Marmelade und Powidl im Herbst. So
lernen Sie die Kulturlandschaft des Naturparks Attersee-Traunsee von ihrer besten Seite
kennen.
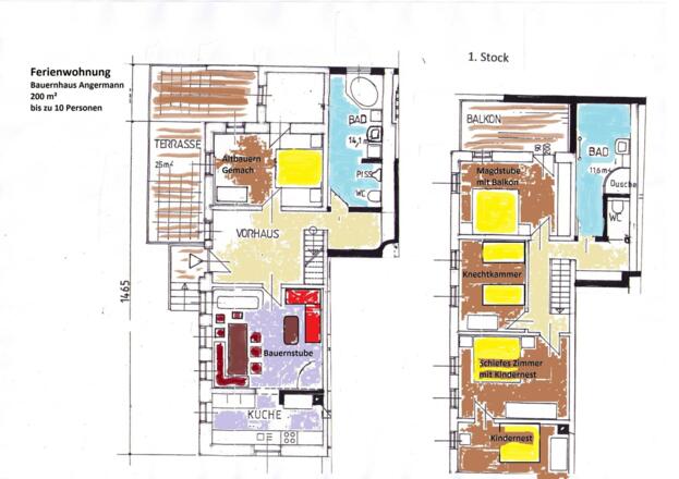
Die Ferienwohnung (200 m²) im neu renovierten Bauernhaus ist ideal für 2 Familien oder Gruppen (Taucher-, Wander-) für bis zu 10 Personen. In der alten Bauernstube mit TV-Ecke haben alle bequem Platz. Die Küche mit Geschirrspüler, Gefrierer, Herd mit Backofen ist top ausgestattet.
Unser Bauernhof - eingebettet zwischen Bergwiesen und Obstgärten - breitet sich zwischen dem Höllengebirge im Osten und dem Attersee im Westen aus.
Lassen Sie sich von ihrem Zimmer aus von dieser Landschaft verzaubern, Sie sind in guter Gesellschaft. Kaiser Franz Josef, Gustav Mahler, Gustav Klimt, Friedrich Gulda - um einige zu nennen, liebten ebenfalls diese Harmonie zwischen Bergen und Seen.
Beginnen Sie auch zu schwärmen vom Farbenspiel des Attersees von Azurblau bis Feuerrot, wenn die Sonne am Abend im See zu verschwinden scheint.
Gestärkt lässt sich´s leichter leben, sei es bei Spaziergängen oder Wanderungen in den Bergen, sei es bei den Tauchgängen am See oder bei einem Ausflug nach Hallstatt, Gmunden, Bad Ischl oder Salzburg. Oder lassen Sie lieber die Seele baumeln - zB am hauseignen Badestrand oder bei einer Physiotherapie, Heilmoorpackung oder Massage im Haus?
Info
Kontakt
|
Kaisigen 6b, 4853 Steinbach am Attersee, Österreich
entfernt
|
|
| +43 7663 8161 | |
| mail@attersee-chalet.at | |
| attersee-attergau.salzkammergut.at/oesterreich-unterkunft/detail/100132/attersee-chalet-angermann.html |
Karte
Öffnungszeiten
ganzjährig geöffneter Betrieb
Anreise
Anfahrt
Mit dem Auto:
Anreise aus Osten:
Abfahrt A1/Schörfling am Attersee - dann noch 17 km über Weyregg - Steinbach
Anreise aus Westen:
Abfahrt A1/Mondsee - dann noch 25 km über Unterach - Weissenbach - Steinbach
Anreise aus Norden: Abfahrt Ried - zur Stadt Ried ca. 4 km, dann noch 60 km Frankenburg - Gampern- Kammer - Weyregg -Steinbach
Anreise aus Süden - von Bad Ischl sind es noch 25 km, ... nach ca. 4 km abzweigen nach links, übers Weißenbachtal zum Attersee, weiter von Weißenbach rechts nach Steinbach
Mit der Bahn:
Von Wien/Linz/Wels kommend BHF Attnang-Puchheim und weiter mit dem Bus oder Taxi nach Steinbach
Von Salzburg kommend ebenfalls BHF Attnang-Puchheim oder alternativ BHF Vöcklamarkt und mit der Attergau Bahn bis Attersee - weiter mit dem Schiff
Mit dem Flugzeug:
Airport Salzburg-Mozart auf der A1, Abfahrt Mondsee nach Steinbach (ca. 60 km)
Airport Linz auf der A1 bis Ausfahrt Schörfling u. über die B152 nach Steinbach (ca. 90 km)